Moderne rækkehuse med attraktiv beliggenhed i Skalborg


Gartnervej 142 - 206, 9200 Aalborg
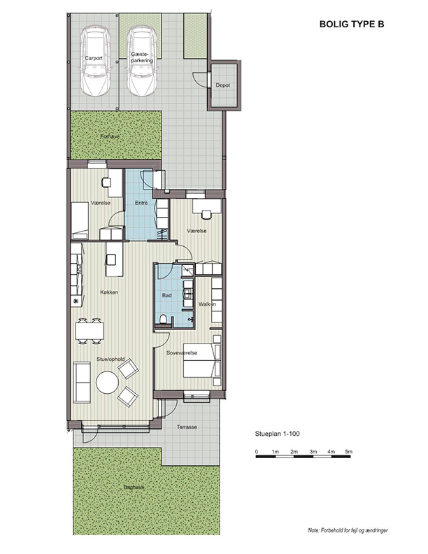
Rækkehusene er i både et og to plan, og til hver bolig er der egen have, terrasse, skur og carport med mulighed for parkering af 1 bil samt en ekstra i indkørslen. Boligerne fås fra 109 til 116 m2.
Alle boliger har stort soveværelse med walk-In, 2 børneværelser, badeværelse, entre, åbent køkken i forbindelse med stue/opholdsarealer. I to plans boligerne er der yderligere et gæstetoilet i stueetagen.
Projektet er opført i en høj kvalitet, så det får energimærkning A 2018 med mekanisk decentralt ventilationsanlæg i alle rækkehusene.
Facader er opført i teglsten, udvendige døre og vinduer er i træ/alu.
Gulve er udført i vinylplank med moderne inventar fra Invita.
Få mere information om Gartnervej og priser ved at rette henvendelse til Søren Enggaard A/S på tlf. 9838 1629.